长春皓轩创意包装设计有限公司

ELEVATOR DOOR SYSTEM电梯门系统

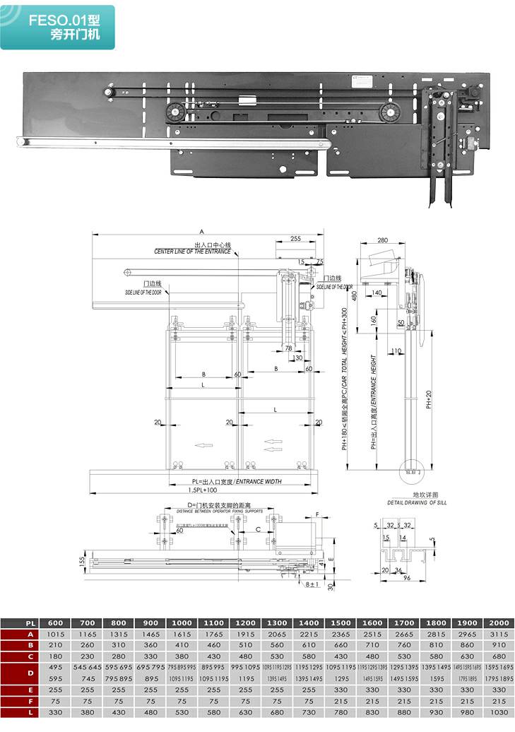
FESO.01型旁开门机